Zur Navigation wechseln Zum Inhalt wechseln Zum Footer wechseln

Hallenpark Melk – Moderne Gewerbeflächen mit flexibler Nutzung – perfekte Erreichbarkeit

ImmoNr.
TB-26-331
Objektart
Hallen/Lager/Produktion
Objekttyp
Halle
Vermarktungsart
Miete
Ort
Melk
Land
Österreich
Bürofläche
35 m²
Nutzfläche
200 m²
Bruttomiete
2.233,21 €
Provision
3 BMM + 20% Ust

Zur Immobilie

Hallenpark Melk – Moderne Gewerbeflächen mit flexibler Nutzung
Solarstraße 7 | 3390 Melk


Projektbeschreibung

In der Solarstraße 7 in Melk entsteht derzeit ein moderner Hallenpark in modularer Bauweise, der speziell für Unternehmen entwickelt wurde, die hochwertige, flexible und sofort nutzbare Gewerbeflächen suchen.

Das Projekt richtet sich insbesondere an Handwerksbetriebe, Gewerbetreibende, Dienstleister, Start-ups, Produktionsunternehmen sowie Lager- und Logistikbetriebe.

Jede Einheit („Top“) wird neu errichtet und bietet eine moderne Infrastruktur für einen effizienten und professionellen Geschäftsbetrieb. Durch die modulare Bauweise können die Flächen flexibel genutzt oder miteinander kombiniert werden.

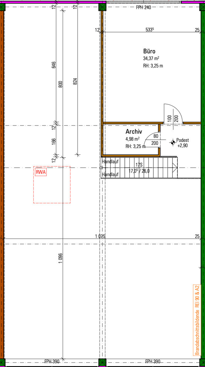
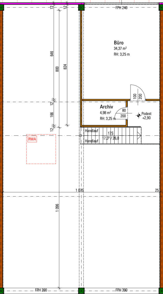
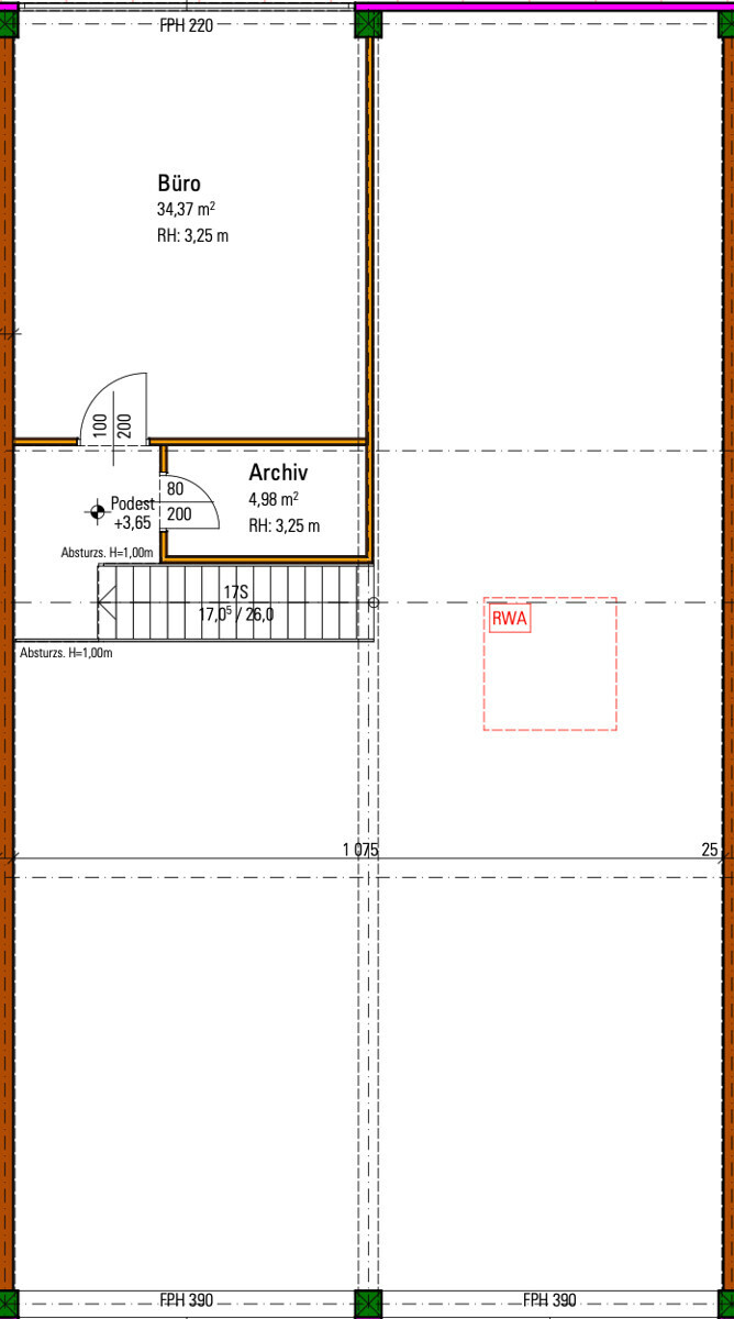
Die Einheiten sind so konzipiert, dass Büro, Lager und Arbeitsfläche optimal miteinander verbunden werden.



Die verfügbaren Einheiten bieten Nutzflächen ab ca. 200 m² und bestehen jeweils aus:

Hallen-/Lagerflächen
Büroflächen ab ca. 25 m² (Ausführung in Trockenbau)
Sanitärcontainer mit WC (ca. 5 m²)

Die Flächen sind flexibel gestaltbar und können individuell an die Bedürfnisse des Mieters angepasst werden. Die Büroflächen können bei Bedarf erweitert werden.

Darüber hinaus besteht die Möglichkeit, die Einheiten um ein 1. Obergeschoss zu ergänzen. Im Obergeschoss können sowohl zusätzliche Büroflächen als auch Kommissionierungsflächen realisiert werden.

Die Gewerbehallen werden mit einer hochwertigen technischen und funktionalen Ausstattung errichtet und ermöglichen einen sofortigen Betriebsstart.


Jede Einheit verfügt über:

eigenes Büro mit integriertem Sanitärraum
Heizung und Kühlung über Luftwärmepumpe mittels Bodenkernaktivierung
Stromanschluss für gewerbliche Nutzung
Sektionaltor mit ebenerdiger Zufahrt
Parkplätze direkt vor der Halle
modernes Zutrittssystem mittels Chip
höchste Brandbeständigkeit (R90)

Zusätzlich wird auf dem Dach eine Photovoltaikanlage mit ca. 300–350 kWp errichtet.

Durch die Teilnahme an einer lokalen Energiegemeinschaft profitieren Mieter von deutlich reduzierten Stromkosten und sparen einen Großteil der Netzgebühren.


Die Einheiten können bei Bedarf individuell angepasst werden, beispielsweise durch:

zusätzliche Ausstattung
angepasste Raumaufteilungen
spezielle technische Anforderungen


Das Gesamtareal wird zusätzlich durch folgende Einrichtungen ergänzt:

Müllplatz
Fahrradabstellplätze
E-Tankstellen
Flexible Flächenlösungen
Durch das modulare Konzept sind unterschiedliche Flächengrößen möglich.
Einheiten ab ca. 200 m²
kombinierbare Flächen bis zu ca. 1.200 m²

Damit eignet sich der Hallenpark sowohl für kleine Betriebe als auch für wachsende Unternehmen, die langfristig expandieren möchten.



Verfügbare Einheiten


Top 1

Gesamtfläche: ca. 303,75 m²
EG Büro: ca. 89,01 m²
EG Halle: ca. 103,43 m²
OG Kommissionierungsfläche: ca. 111,31 m²
Miete inkl. BK € 2.561,60 zzgl. 20% Ust


Top 2

Gesamtfläche: ca. 240,93 m²
EG Büro: ca. 30,45 m²
EG Halle: ca. 171,13 m²
OG Büro: ca. 39,35 m²
Miete inkl. BK € 2.294,68 zzgl. 20% Ust


Top 3

Gesamtfläche: ca. 240,93 m²
EG Büro: ca. 30,45 m²
EG Halle: ca. 171,13 m²
OG Büro: ca. 39,35 m²
Miete inkl. BK € 2.294,68 zzgl. 20% Ust


Top 4

Gesamtfläche: ca. 240,93 m²
EG Büro: ca. 30,45 m²
EG Halle: ca. 171,13 m²
OG Büro: ca. 39,35 m²
Miete inkl. BK € 2.294,68 zzgl. 20% Ust


Top 5

Gesamtfläche: ca. 240,93 m²
EG Büro: ca. 30,45 m²
EG Halle: ca. 171,13 m²
OG Büro: ca. 39,35 m²
Miete inkl. BK € 2.294,68 zzgl. 20% Ust


Top 6

Gesamtfläche: ca. 242,02 m²
EG Büro: ca. 30,45 m²
EG Halle: ca. 136,19 m²
OG Büro: ca. 39,35 m²
OG Kommissionierungsfläche: ca. 36,03 m²
Miete inkl. BK € 2.196,19 zzgl. 20% Ust


Top 7

Gesamtfläche: ca. 240,93 m²
EG Büro: ca. 30,45 m²
EG Halle: ca. 171,13 m²
OG Büro: ca. 39,35 m²
Miete inkl. BK € 2.294,68 zzgl. 20% Ust


Top 8

Gesamtfläche: ca. 240,93 m²
EG Büro: ca. 30,45 m²
EG Halle: ca. 171,13 m²
OG Büro: ca. 39,35 m²
Miete inkl. BK € 2.294,68 zzgl. 20% Ust


Top 9

Gesamtfläche: ca. 345,76 m²
EG Büro: ca. 30,10 m²
EG Halle: ca. 274,34 m²
OG Büro: ca. 41,32 m²
Miete inkl. BK € 3.221,24 zzgl. 20% Ust


Mietkonditionen

Miete Lager-/Hallenflächen: € 7,00 / m²
Miete Büro-, Sanitär- und Nebenflächen: € 9,50 / m²
Miete Kommissionierungsflächen (1. OG): € 4,00 / m²
Betriebskosten pro m²: €1,80

Nutzungsart
Gewerbe

Der Hallenpark befindet sich in der Solarstraße in Melk, einem etablierten und dynamisch wachsenden Gewerbe- und Industriestandort mit hervorragender Verkehrsanbindung.

Der Standort zeichnet sich durch seine strategisch günstige Lage im Bezirk Melk sowie durch eine ausgezeichnete Erreichbarkeit für Kunden, Lieferanten und Mitarbeiter aus.


Verkehrsanbindung

Schnelle Anbindung an die A1 Westautobahn – Anschlussstelle Melk in unmittelbarer Nähe
Direkte Verbindung in Richtung St. Pölten, Linz und Wien
Bahnhof Melk in kurzer Distanz – optimale Anbindung für Mitarbeiter und Pendler
Gute Erreichbarkeit für Lieferverkehr und Logistik


Starker Wirtschaftsstandort

Das Gewerbegebiet rund um die Solarstraße entwickelt sich kontinuierlich weiter und beherbergt bereits zahlreiche erfolgreiche Unternehmen.
In unmittelbarer Umgebung befinden sich unter anderem:
Quarzwerke Österreich
Gottwald GmbH & Co KG
ein Werkzeughandel
mehrere Dienstleistungs- und Gewerbebetriebe
zwei Tankstellen im direkten Umfeld

Ein weiterer bedeutender Entwicklungsschritt für das Gebiet ist die Errichtung eines neuen McDonald’s, der zusätzliche Frequenz und Infrastruktur in den Standort bringt.

Die Kombination aus etablierten Betrieben, wachsender Infrastruktur und optimaler Verkehrsanbindung macht diesen Standort besonders attraktiv für Unternehmen verschiedenster Branchen.

Die Gewerbehallen befinden sich aktuell in der Errichtungsphase und werden als Erstbezugseinheiten übergeben.

Die Baufertigstellung ist für Ende 2026 geplant.

Aufgrund der hohen Nachfrage wurden bereits drei Halleneinheiten reserviert.
Interessenten wird daher empfohlen, sich frühzeitig über verfügbare Einheiten zu informieren und eine Reservierung vorzunehmen.

Durch die flexible Bauweise können in dieser Phase noch individuelle Anpassungen und Sonderausstattungen berücksichtigt werden.

Hinweis: Bei der Visualisierung handelt es sich um einen grobe Darstellung des Gesamtobjekts, Abweichungen sind möglich.

Ihr Ansprechpartner

Timo Burchartz

Herr Timo Burchartz

IMMO AGENTUR Burchartz & Krenn GmbH

Tel.:
06642130885
E-Mail:
burchartz@immoagentur-amstetten.at

Bahnhofstraße 25/4
3300 Amstetten

Ihre Anfrage zu der Immobilie „Hallenpark Melk – Moderne Gewerbeflächen mit flexibler Nutzung – perfekte Erreichbarkeit“ (TB-26-331)

* Pflichtfelder